Loading...
Pour découvrir contactez nous
Je veux être contacté
1/3
PANTIN 93500

Local/bureau à vendre PANTIN (93)

  • superficie
    145 m2

Présentation du bien : Commerce 2 pièces à vendre à PANTIN

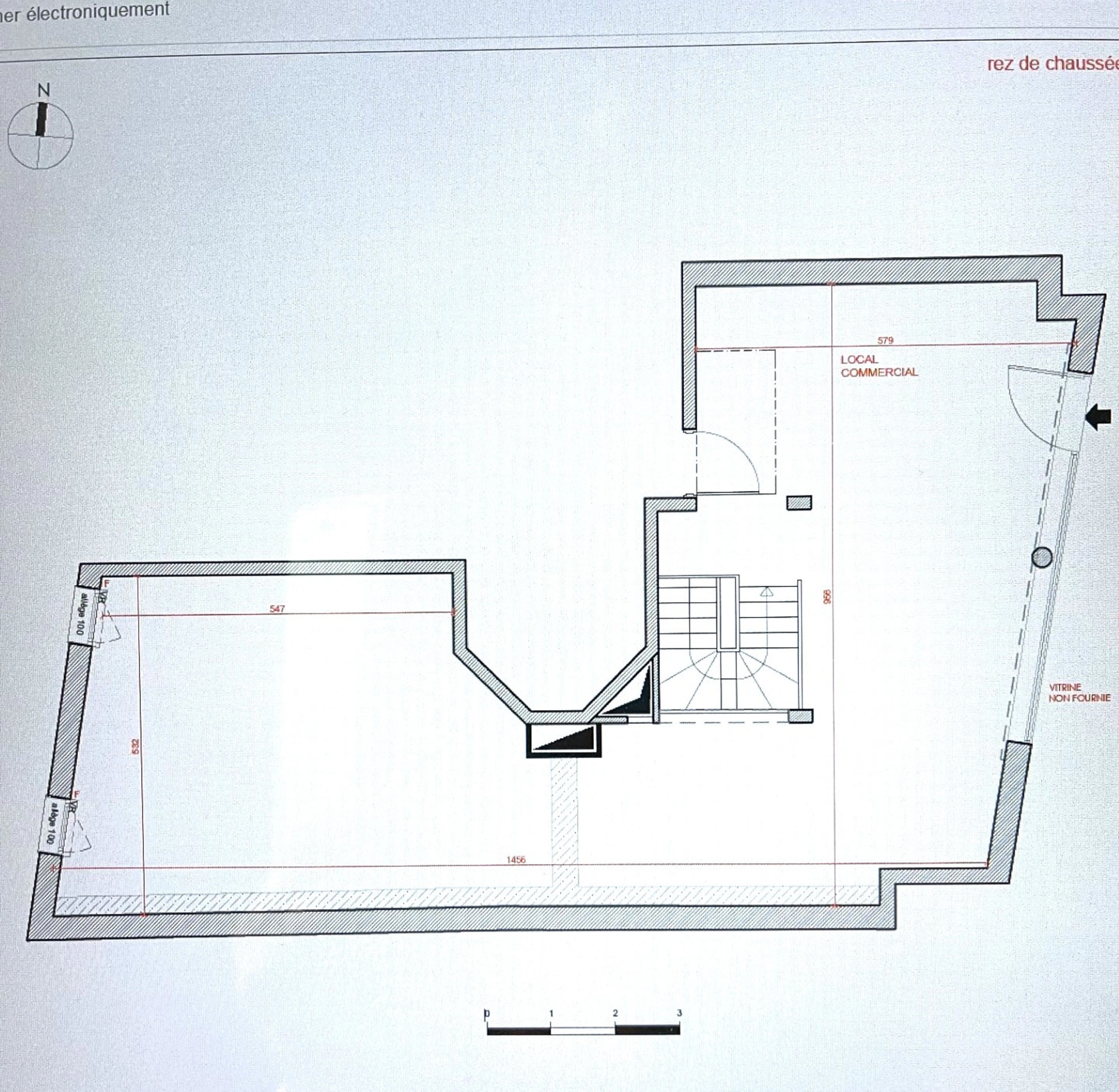
À vendre : local commercial avec murs.

Découvrez ce local commercial à vendre, offrant une surface de 86,68 m² au rez-de-chaussée, idéale pour y aménager un bureau. Ce bien comprend également un sous-sol spacieux de 58,53 m². Les activités autorisées incluent bureaux, cabinets médicaux, dentaires, ainsi que laboratoires (à consulter avec syndic de copropriété). Ne manquez pas cette opportunité d’investir dans un espace polyvalent qui répond à vos besoins professionnels.
A proximité de toutes commodités : bus, métro, écoles, commerces..... Nombre de lots de la copropriété : 41, Montant moyen annuel de la quote-part de charges (budget prévisionnel)(honoraire syndic, entretien immeuble....) : 1200€ soit 100€ par mois. Les honoraires sont à la charge du vendeur.
Les informations sur les risques auxquels ce bien est exposé sont disponibles sur le site Géorisques : www. georisques. gouv. fr.

Réseau Immobilier CAPIFRANCE - Votre agent commercial (RSAC N°348 397 928 - Greffe de BOBIGNY) Meng Kiet SUNG Entrepreneur Individuel 06 13 98 03 46 - Réf.877137
Informations complémentaires :
Prix global avec honoraires 490 000 €
Honoraires à la charge du vendeur

Pour accéder au barème des honoraires : cliquez ici
Localisation du bien : Commerce 145 m2 à vendre à PANTIN
93500 PANTIN

Caractéristiques du bien :

340 938 872 855
2
145
5
2024
oui
490 000 €
490000

Conseiller Capifrance en charge de ce bien

Loading...
Les données collectées à partir de ce formulaire sont nécessaires pour nous permettre de répondre à votre demande. Elles sont collectées et traitées informatiquement par le responsable de traitement et peuvent être transmises à nos services internes ainsi qu'à nos partenaires intervenant dans l'instruction de votre demande. Vous disposez sur vos données de droits d'accès, de rectification, d'opposition, que vous pouvez exercer en nous contactant à dpo@digitregroup.com. Pour plus de détails, consulter notre page politique générale de confidentialité. Conformément à l'article L 223-1 du code de la consommation, l'utilisateur est informé qu'il a la possibilité de s'inscrire sur www.bloctel.gouv.fr pour s'opposer à toute démarcharge par téléphone, à l'exception des relations clients déjà établies.
Foire aux questions
L’équipe Capifrance répond à vos questions :

Investir en locaux professionnels peut offrir plusieurs avantages intéressants pour les investisseurs. Voici quelques raisons pour lesquelles ce type d'investissement peut être attrayant :
1. Rendement élevé
2. Stabilité des locataires : Les entreprises tendent à signer des baux de longue durée (souvent entre 3 et 9 ans). Cela procure une stabilité des revenus locatifs sur le long terme et réduit le risque de vacance locative.
3. Valorisation du bien : Les locaux professionnels peuvent prendre de la valeur avec le temps, en particulier s'ils sont situés dans des zones en développement ou des quartiers d'affaires en pleine expansion.
4. Possibilités de diversification : Investir dans des locaux professionnels permet de diversifier son portefeuille immobilier. Cela permet de réduire les risques en répartissant les investissements sur différents types d'actifs immobiliers (bureaux, commerces, entrepôts, etc.).
5. Moins de gestion quotidienne : Comparé à la gestion de biens résidentiels, les locaux professionnels nécessitent moins de gestion quotidienne. Les entreprises locataires sont généralement responsables de l'entretien courant.

Il n’existe pas de tacite reconduction. Le preneur (locataire) doit demander le renouvellement du bail 6 mois avant l’échéance de celui-ci. Il ne peut pas lui être refusé.
En cas de tacite prolongation, les conditions du bail initial continuent de s’appliquer, mais les parties peuvent donner congé à tout moment, sous réserve de respecter un préavis. Les conditions du bail (loyer, charges, etc.) continuent de s’appliquer. Si la durée du bail dépasse 12 ans, le propriétaire pourra déplafonner le loyer, c'est-à-dire qu'il sera fixé à la valeur locative (prix couramment pratiqués dans le voisinage.)

Estimer la valeur de son fonds de commerce nécessite une approche globale, prenant en compte à la fois les aspects financiers, commerciaux, matériels et immatériels de l’entreprise. Faire appel à un conseiller spécialisé en évaluation de fonds de commerce peut également aider à obtenir une estimation précise et professionnelle.

Vous avez besoin de conseils pour votre projet immobilier ? Contacter un conseiller Capifrance

Découvrez le prix de votre bien par rapport au marché

Pour une vente réussie
Fiable Rapide Efficace
Meng Kiet SUNG
Présenté par
Meng Kiet