Loading...
1/20
Sous compromis
Exclusivité
Sous compromis
Exclusivité
PAU 64000

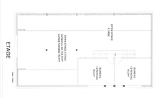
Bâtiment à usage de bureaux de 250 m² avec sous sol et parking

  • superficie
    420 m2
  • terrain
    275 m2

Présentation du bien : Commerce 6 pièces à vendre à PAU

EXCLUSIVITE. Proche centre ville de Pau, 4 Rue des Messagers, dans un ensemble immobilier soumis au régime de la copropriété, bâtiment à usage de bureaux d'une surface de 250 m² en duplex + sous-sol de 170 m² avec accès intérieur et extérieur construit en 2007. Libre de toute occupation courant été 2025. Climatisation neuve, plancher chauffant par pompe à chaleur. Nombre de lots de la copropriété : 10, Montant moyen annuel de la quote-part de charges (budget prévisionnel) : 100€ soit 8€ par mois. Les honoraires sont à la charge du vendeur.
Les informations sur les risques auxquels ce bien est exposé sont disponibles sur le site Géorisques : www. georisques. gouv. fr.

Réseau Immobilier CAPIFRANCE - Votre agent commercial (RSAC N°453 603 714 - Greffe de TARBES) Bernard CAZAUX Entrepreneur Individuel 06 88 94 43 19 - Réf.903036
Informations complémentaires :
Pour accéder au barème des honoraires : cliquez ici
Localisation du bien : Commerce 420 m2 à vendre à PAU
64000 PAU

Caractéristiques du bien :

340 936 297 965
6
420
250
275
2006
DPE_ passoire énergétique logement extrêmement performant logement extrêmement peu performant consommation (énergie primaire) 140 kWh/m²/an émissions* 3 kgCO2/m²/an
DPE_ * Dont émissions de gaz à effet de serre peu d'émissions de CO2 émissions de CO2 très importantes 3 kgCO2/m²/an
Estimation des coûts annuels d'énergie du logement
Entre 5646 € et 5646 € par an
Montant estimé des dépenses annuelles d’énergie pour un usage standard : sous forme de fourchette avec indication de la fourchette

Prix moyens des énergies indexés au 1er janvier 2021 (abonnements compris)

Conseiller Capifrance en charge de ce bien

Loading...
Les données collectées à partir de ce formulaire sont nécessaires pour nous permettre de répondre à votre demande. Elles sont collectées et traitées informatiquement par le responsable de traitement et peuvent être transmises à nos services internes ainsi qu'à nos partenaires intervenant dans l'instruction de votre demande. Vous disposez sur vos données de droits d'accès, de rectification, d'opposition, que vous pouvez exercer en nous contactant à dpo@digitregroup.com. Pour plus de détails, consulter notre page politique générale de confidentialité. Conformément à l'article L 223-1 du code de la consommation, l'utilisateur est informé qu'il a la possibilité de s'inscrire sur www.bloctel.gouv.fr pour s'opposer à toute démarcharge par téléphone, à l'exception des relations clients déjà établies.

Découvrez égalementles biens similaires

Foire aux questions
L’équipe Capifrance répond à vos questions :

Investir en locaux professionnels peut offrir plusieurs avantages intéressants pour les investisseurs. Voici quelques raisons pour lesquelles ce type d'investissement peut être attrayant :
1. Rendement élevé
2. Stabilité des locataires : Les entreprises tendent à signer des baux de longue durée (souvent entre 3 et 9 ans). Cela procure une stabilité des revenus locatifs sur le long terme et réduit le risque de vacance locative.
3. Valorisation du bien : Les locaux professionnels peuvent prendre de la valeur avec le temps, en particulier s'ils sont situés dans des zones en développement ou des quartiers d'affaires en pleine expansion.
4. Possibilités de diversification : Investir dans des locaux professionnels permet de diversifier son portefeuille immobilier. Cela permet de réduire les risques en répartissant les investissements sur différents types d'actifs immobiliers (bureaux, commerces, entrepôts, etc.).
5. Moins de gestion quotidienne : Comparé à la gestion de biens résidentiels, les locaux professionnels nécessitent moins de gestion quotidienne. Les entreprises locataires sont généralement responsables de l'entretien courant.

Il n’existe pas de tacite reconduction. Le preneur (locataire) doit demander le renouvellement du bail 6 mois avant l’échéance de celui-ci. Il ne peut pas lui être refusé.
En cas de tacite prolongation, les conditions du bail initial continuent de s’appliquer, mais les parties peuvent donner congé à tout moment, sous réserve de respecter un préavis. Les conditions du bail (loyer, charges, etc.) continuent de s’appliquer. Si la durée du bail dépasse 12 ans, le propriétaire pourra déplafonner le loyer, c'est-à-dire qu'il sera fixé à la valeur locative (prix couramment pratiqués dans le voisinage.)

Estimer la valeur de son fonds de commerce nécessite une approche globale, prenant en compte à la fois les aspects financiers, commerciaux, matériels et immatériels de l’entreprise. Faire appel à un conseiller spécialisé en évaluation de fonds de commerce peut également aider à obtenir une estimation précise et professionnelle.

Vous avez besoin de conseils pour votre projet immobilier ? Contacter un conseiller Capifrance

Découvrez le prix de votre bien par rapport au marché

Pour une vente réussie
Fiable Rapide Efficace
Bernard CAZAUX
Présenté par
Bernard