Loading...
PUTEAUX 92800

PUTEAUX, Seine riverfront, 5 rooms, 139 m²

  • 2 br
  • 140
  • 3 bedrooms
Contact advisor

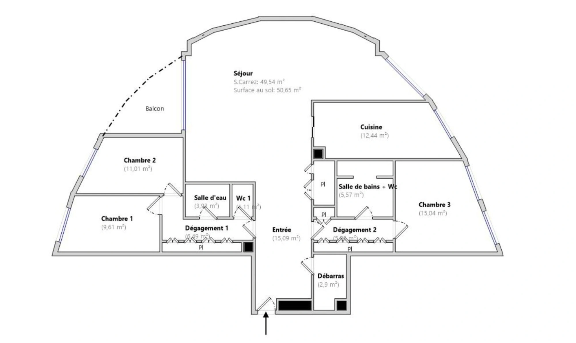
Presentation of the property : Apartment 5 rooms for sale in PUTEAUX

Puteaux Front de Seine – “Le France” Residence – 139 m²

Apartment In the iconic “Le France” residence, discover this elegant 139 m² family apartment, located on the 6th floor and benefiting from a dual East-West exposure offering natural light throughout the day.

Its spacious living room, extended by a loggia, allows you to enjoy an unobstructed and spectacular view of Paris, the Eiffel Tower, the Louis Vuitton Foundation, and more.

The separate, welcoming, and functional kitchen can easily be opened up to the living area as desired.

The sleeping area comprises three bedrooms, two bathrooms, and two toilets, balanced in size to ensure everyone's privacy. Ample built-in storage enhances comfort and practicality.

The apartment is part of a prestigious condominium with a 24/7 concierge service, three elevators, and secure access. A cellar and a parking space complete this property.

Located in the immediate vicinity of Île de Puteaux (swimming pool, tennis courts, park, etc.), shops, schools, and public transport (metro line 1, tram T2, Puteaux train station), this apartment is appealing thanks to its sought-after location, generous living spaces, and exceptional views of the most beautiful Parisian panoramas.

A wonderful opportunity in a desirable residence.

Could this be your future home?
For more information or to arrange a viewing, please contact me.


Nombre de lots de la copropriété : 620, Montant moyen annuel de la quote-part de charges (budget prévisionnel) : 8445€ soit 703€ par mois. Les honoraires sont à la charge du vendeur.
Les informations sur les risques auxquels ce bien est exposé sont disponibles sur le site Géorisques : www. georisques. gouv. fr.

** ENGLISH SPEAKERS: please note that Capifrance has an international department that can help with translations. To see our range of 20,000 properties for sale in France, please visit our Capifrance website directly. We look forward to finding your dream home!
Additional information :
Additional information 1 050 000 €
Fees payable by the seller

To view the fee schedule : click here

Features of this property :

340 935 690 729
3
5
140
138,59
2
40
6
1976
Gas
yes
yes
yes
yes
1 050 000 €
2 043 €
1050000
DPE_ passoire énergétique logement extrêmement performant logement extrêmement peu performant consommation (énergie primaire) 169 kWh/m²/an émissions* 25 kgCO2/m²/an
DPE_ * Dont émissions de gaz à effet de serre peu d'émissions de CO2 émissions de CO2 très importantes 25 kgCO2/m²/an
Estimated annual energy costs of the property
Between 1780 € and 2460 € by year
Estimated amount of annual energy expenditure for standard use : in the form of a range with indication of the range

Average energy prices indexed as of January 1, 2021 (subscriptions included)

Luxury advisor in charge of this property

Loading...
The data collected from this form is necessary to enable us to respond to your request. It is collected and processed electronically by the data controller and may be passed on to our internal departments and to our partners involved in processing your request. You have the right to access, rectify and object to your data, which you can exercise by contacting us at dpo@digitregroup.com. In accordance with article L 223-1 of the French Consumer Code, users are informed that they have the option of registering on www.bloctel.gouv.fr to oppose all telephone canvassing, with the exception of established customer relationships.

Real Estate Daily

Tips, news, analysis of real estate trends—our expertise at your service!
See all articles
Les taux de crédit immobilier en décembre 2025 et prévisions pour 2026
Actualités

Mortgage Rates in December 2025 in France and Outlook for 2026

What is the level of mortgage rates in December 2025? How does this affect your borrowing capacity for a purchase or an investment? Mortgage rates in...
25/11/2025
Augmentation de la taxe foncière en 2026 : ce qu'il faut savoir
Actualités

Increase in French Property Tax in 2026: What You Need to Know

Will my local tax increase in 2026, and why? Am I affected by the 2026 property tax reform as a homeowner, future buyer, or rental investor? What is t...
20/11/2025
Acheter une maison construite par un particulier : les pièges à éviter
Achat

Buying a House Built by a Private Individual in France: Advice and Pitfalls to Avoid

Are you wondering whether buying a house built by a private individual is a good opportunity for your real estate project?Are you worried about techni...
19/11/2025
DPE 2026 : quels sont les diagnostics immobiliers obligatoires pour une vente ?
Conseils

DPE 2026: What Mandatory Property Surveys Are Required in France for a Real Estate Sale?

Will your property lose value because of its energy rating (DPE), or on the contrary, gain value with the 2026 reform? Should you redo your energy ass...
18/11/2025
Investir dans des places de parking en 2026 : le guide pratique
Achat

Investing in Parking Spaces in France in 2026: A Practical Guide

Are you wondering whether investing in parking spaces is a profitable and simple way to diversify your assets in 2026? Are you hesitating between buyi...
14/11/2025
Société civile de placement immobilier : ce qu'il faut savoir sur la SCPI
Conseils

French Real Estate Investment Company : What You Need to Know About SCPIs

Are you wondering whether an SCPI is a suitable solution to diversify your real estate savings without handling the management yourself? Do you want t...
13/11/2025
Recalculer son taux immobilier : comment renégocier son crédit ?
Conseils

Recalculating Your Mortgage Rate: How to Renegotiate Your Home Loan in France

Are you wondering whether it is worthwhile today to renegotiate your mortgage or have your loan bought out? Do you want to know how a simple recalcula...
05/11/2025
Que faire en cas de vente de bien immobilier sous-évalué dans la succession ?
Vendre

What to do with the sale of an undervalued real estate property in an inheritance?

What are the risks if the declared value of a transferred property is lower than its real value?How should you react if the sale of an inherited prope...
03/11/2025

Find out the market price of your property

For a successful sale
Reliable, Fast, Efficient
Olivier BLAREL
Presented by
Olivier