Loading...
LEOGNAN 33850

✨ Magnificent farmhouse for sale in Léognan ✨

  • 2 br
  • 162
  • 3 bedrooms
  • 1509
Contact advisor

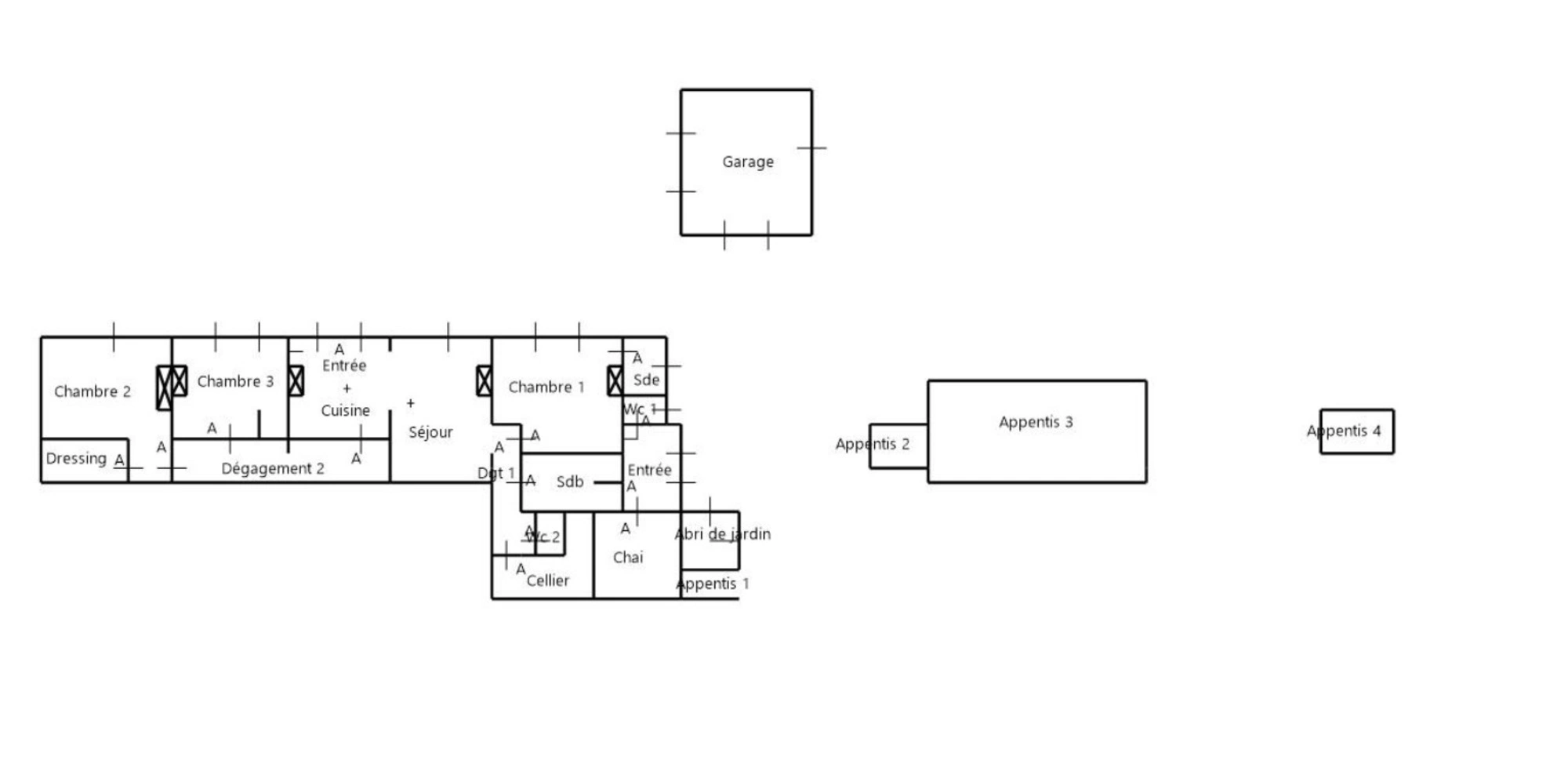
Presentation of the property : House 4 rooms for sale in LEOGNAN

You'll love this charming farmhouse in Léognan.
A stone's throw from listed castles, in a preserved environment, this single-story farmhouse of nearly 162 m² will seduce you.
A unique place where the character of the old meets modern comfort, in a peaceful setting, ideal for a quiet family life, while remaining close to all amenities.
Behind its authentic facade, this house reveals beautiful volumes and a warm atmosphere, with its solid parquet floors, fireplaces in each room, old terracotta tiles and cement tiles, which give it a unique character.
It is designed for those looking for charm, calm and great development potential.
The living room is organized around a large kitchen with fireplace, open to the living room.

Night side, the house offers three large bedrooms of 27 m², 27 m² and 37 m², giving free rein to your desires, and allowing you to modulate according to your needs: master suite, guest room, office space…

To complete the set:
🛁 A bathroom with shower and bathtub
🚿 A shower room
🚽 Separate toilets
🧺 A storeroom

The charm does not exclude modern comfort: this house is already equipped with electric roller shutters, fiber optics (ideal for teleworking), a videophone, as well as gas heating.

🌿 Outside, a beautiful space:

On a fully enclosed and landscaped plot of 1500 m², you will enjoy a well-kept garden, planted with trees and flowers, offering many shaded corners.
At the front of the house, a terrace extends the living spaces.

The property also has some particularly appreciable outbuildings:
🏡 An 11m2 wine storehouse adjoining the house
🚗 A closed garage with motorized gate of 35 m²
🛠️ A 5 m² workshop
🏚️ An open shed of 32 m², ideal for storage

📍 Léognan, a town located in the southwest of the Gironde, is a true haven of peace, just 20 minutes from the center of Bordeaux.
Surrounded by vineyards and forests, Léognan perfectly combines the calm of the countryside and proximity to the city.
It is an ideal destination for those looking for a peaceful quality of life, while remaining close to major roads and urban amenities.

Do not hesitate to contact me to find out more or to organize a visit, I am at your disposal to accompany you in the discovery of this property full of character!








Les honoraires d'agence sont à la charge de l'acquéreur, soit 2,47% TTC du prix hors honoraires.
Les informations sur les risques auxquels ce bien est exposé sont disponibles sur le site Géorisques : www. georisques. gouv. fr.

** ENGLISH SPEAKERS: please note that Capifrance has an international department that can help with translations. To see our range of 20,000 properties for sale in France, please visit our Capifrance website directly. We look forward to finding your dream home!
Additional information :
Additional information 580 000 €
Price excluding fees 566 000 €
Fees payable by the buyer are 2.47% TTC

To view the fee schedule : click here

Features of this property :

340 935 417 624
3
4
162
161,75
1 509
2
1870
Gas, Fireplace
yes
yes
yes
yes
580 000 €
1 409 €
580000
DPE_ passoire énergétique logement extrêmement performant logement extrêmement peu performant consommation (énergie primaire) 212 kWh/m²/an émissions* 45 kgCO2/m²/an
DPE_ * Dont émissions de gaz à effet de serre peu d'émissions de CO2 émissions de CO2 très importantes 45 kgCO2/m²/an
Estimated annual energy costs of the property
Between 3080 € and 4190 € by year
Estimated amount of annual energy expenditure for standard use : in the form of a range with indication of the range

Average energy prices indexed on 2021, 2022, 2023 (subscriptions included)

Luxury advisor in charge of this property

Loading...
The data collected from this form is necessary to enable us to respond to your request. It is collected and processed electronically by the data controller and may be passed on to our internal departments and to our partners involved in processing your request. You have the right to access, rectify and object to your data, which you can exercise by contacting us at dpo@digitregroup.com. In accordance with article L 223-1 of the French Consumer Code, users are informed that they have the option of registering on www.bloctel.gouv.fr to oppose all telephone canvassing, with the exception of established customer relationships.

Real Estate Daily

Tips, news, analysis of real estate trends—our expertise at your service!
See all articles
Les taux de crédit immobilier en décembre 2025 et prévisions pour 2026
Actualités

Mortgage Rates in December 2025 in France and Outlook for 2026

What is the level of mortgage rates in December 2025? How does this affect your borrowing capacity for a purchase or an investment? Mortgage rates in...
25/11/2025
Augmentation de la taxe foncière en 2026 : ce qu'il faut savoir
Actualités

Increase in French Property Tax in 2026: What You Need to Know

Will my local tax increase in 2026, and why? Am I affected by the 2026 property tax reform as a homeowner, future buyer, or rental investor? What is t...
20/11/2025
Acheter une maison construite par un particulier : les pièges à éviter
Achat

Buying a House Built by a Private Individual in France: Advice and Pitfalls to Avoid

Are you wondering whether buying a house built by a private individual is a good opportunity for your real estate project?Are you worried about techni...
19/11/2025
DPE 2026 : quels sont les diagnostics immobiliers obligatoires pour une vente ?
Conseils

DPE 2026: What Mandatory Property Surveys Are Required in France for a Real Estate Sale?

Will your property lose value because of its energy rating (DPE), or on the contrary, gain value with the 2026 reform? Should you redo your energy ass...
18/11/2025
Investir dans des places de parking en 2026 : le guide pratique
Achat

Investing in Parking Spaces in France in 2026: A Practical Guide

Are you wondering whether investing in parking spaces is a profitable and simple way to diversify your assets in 2026? Are you hesitating between buyi...
14/11/2025
Société civile de placement immobilier : ce qu'il faut savoir sur la SCPI
Conseils

French Real Estate Investment Company : What You Need to Know About SCPIs

Are you wondering whether an SCPI is a suitable solution to diversify your real estate savings without handling the management yourself? Do you want t...
13/11/2025
Recalculer son taux immobilier : comment renégocier son crédit ?
Conseils

Recalculating Your Mortgage Rate: How to Renegotiate Your Home Loan in France

Are you wondering whether it is worthwhile today to renegotiate your mortgage or have your loan bought out? Do you want to know how a simple recalcula...
05/11/2025
Que faire en cas de vente de bien immobilier sous-évalué dans la succession ?
Vendre

What to do with the sale of an undervalued real estate property in an inheritance?

What are the risks if the declared value of a transferred property is lower than its real value?How should you react if the sale of an inherited prope...
03/11/2025

Find out the market price of your property

For a successful sale
Reliable, Fast, Efficient
Mary RAZET
Presented by
Mary