Loading...
ORLEANS 45000

Orléans, demeure de prestige, propriete à vendre, chateau 440 m², piscine, tennis, maison d'amis 85 m², dépendances potentiel aménageable , parc paysagé et arboré 4 ha

  • 3 br
  • 525
  • 5 bedrooms
  • 45000
Contact advisor

Presentation of the property : Property 10 rooms for sale in ORLEANS

ORLEANS est, magnifique propriété du XIX ème aux portes de la Foret d Orléans, une longue allée boisée mène au château niché au cœur d'un très beau parc arboré, paysagé et clos de 4,5 HA : un havre de paix et de quiétude. Cette demeure exceptionnelle distribuée en U se compose d'un bâtiment principal et de 3 bâtiments annexes.
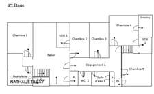
Le château est développé sur 440 m² habitables, baigné de lumière et rénové aux couleurs actuelles: il offre de belles prestations alliant élégance et sobriété. Au rdc : un très grand volume harmonieux de 225 m² offre une belle perspective, baigné de lumière résolument ouvert sur le parc par de grandes fenêtres comprenant: vaste entrée traversante, salon bar , salon télé, bureau, salle à manger, cuisine et véranda. Au 2ème : grand palier à usage de salon, chambre suite parentale avec salle de bain et dressing, 2 chambres avec salle d'eau, 2 chambres, salle d'eau indépendante . Grenier aménageable. Grande cave voutée.
Elle se compose également côte cour d'honneur : d'une maison d'amis de 85 m² avec 2 chambres, aménagée en 2024 avec étage aménageable, garage. D'un second bâtiment comprenant au rdc un grand garage 3 voitures, et un potentiel aménageable en étage de 58 m² au sol. Coté parc, la tranquillité absolue: petite folie ancienne dans le parc, très jolie dépendance l'ancienne orangerie aménageable de 100m² environ. Une vue panoramique, sur le point d 'eau, la piscine , le cours de tennis, la prairie, la foret. Énormément de cachet et beaucoup de charme. Assainissement individuel micro station. En partie rénovée en 2024 avec gout, des travaux tant sur les extérieurs que sur les façades, cette demeure est un coup de cœur. Possible achat terrain en plus ( 2 HA prairies voisines).
Entrée coté cour d honneur et entrée côté parc pour le plaisir de traverser le parc de cette propriété parfaite pour la famille et pour les réceptions. Idéal propriété de famille à demeure et/ou week-end, possible organisation séminaires,
possible chambre d hôtes prestige. Situé à la limite Orléans et St jean de braye, en voiture gare de Fleury 10mn, tramway 3mn, Orléans centre 15 mn. Zone industrielle Nord et Clinique proche. Péage de St Arnoult 1h. Exclusivité. Photos sur demande. Vidéo jointe.


Les honoraires sont à la charge du vendeur.
Les informations sur les risques auxquels ce bien est exposé sont disponibles sur le site Géorisques : www. georisques. gouv. fr.

** ENGLISH SPEAKERS: please note that Capifrance has an international department that can help with translations. To see our range of 20,000 properties for sale in France, please visit our Capifrance website directly. We look forward to finding your dream home!
Additional information :
To view the fee schedule : click here

Features of this property :

340 938 574 287
5
10
525
45 000
3
1850
Electric, Fireplace
yes
yes
yes
yes
yes
yes
DPE_ passoire énergétique logement extrêmement performant logement extrêmement peu performant consommation (énergie primaire) 267 kWh/m²/an émissions* 56 kgCO2/m²/an
DPE_ * Dont émissions de gaz à effet de serre peu d'émissions de CO2 émissions de CO2 très importantes 56 kgCO2/m²/an

Luxury advisor in charge of this property

Loading...
The data collected from this form is necessary to enable us to respond to your request. It is collected and processed electronically by the data controller and may be passed on to our internal departments and to our partners involved in processing your request. You have the right to access, rectify and object to your data, which you can exercise by contacting us at dpo@digitregroup.com. In accordance with article L 223-1 of the French Consumer Code, users are informed that they have the option of registering on www.bloctel.gouv.fr to oppose all telephone canvassing, with the exception of established customer relationships.

Real Estate Daily

Tips, news, analysis of real estate trends—our expertise at your service!
See all articles
Les taux de crédit immobilier en décembre 2025 et prévisions pour 2026
Actualités

Mortgage Rates in December 2025 in France and Outlook for 2026

What is the level of mortgage rates in December 2025? How does this affect your borrowing capacity for a purchase or an investment? Mortgage rates in...
25/11/2025
Augmentation de la taxe foncière en 2026 : ce qu'il faut savoir
Actualités

Increase in French Property Tax in 2026: What You Need to Know

Will my local tax increase in 2026, and why? Am I affected by the 2026 property tax reform as a homeowner, future buyer, or rental investor? What is t...
20/11/2025
Acheter une maison construite par un particulier : les pièges à éviter
Achat

Buying a House Built by a Private Individual in France: Advice and Pitfalls to Avoid

Are you wondering whether buying a house built by a private individual is a good opportunity for your real estate project?Are you worried about techni...
19/11/2025
DPE 2026 : quels sont les diagnostics immobiliers obligatoires pour une vente ?
Conseils

DPE 2026: What Mandatory Property Surveys Are Required in France for a Real Estate Sale?

Will your property lose value because of its energy rating (DPE), or on the contrary, gain value with the 2026 reform? Should you redo your energy ass...
18/11/2025
Investir dans des places de parking en 2026 : le guide pratique
Achat

Investing in Parking Spaces in France in 2026: A Practical Guide

Are you wondering whether investing in parking spaces is a profitable and simple way to diversify your assets in 2026? Are you hesitating between buyi...
14/11/2025
Société civile de placement immobilier : ce qu'il faut savoir sur la SCPI
Conseils

French Real Estate Investment Company : What You Need to Know About SCPIs

Are you wondering whether an SCPI is a suitable solution to diversify your real estate savings without handling the management yourself? Do you want t...
13/11/2025
Recalculer son taux immobilier : comment renégocier son crédit ?
Conseils

Recalculating Your Mortgage Rate: How to Renegotiate Your Home Loan in France

Are you wondering whether it is worthwhile today to renegotiate your mortgage or have your loan bought out? Do you want to know how a simple recalcula...
05/11/2025
Que faire en cas de vente de bien immobilier sous-évalué dans la succession ?
Vendre

What to do with the sale of an undervalued real estate property in an inheritance?

What are the risks if the declared value of a transferred property is lower than its real value?How should you react if the sale of an inherited prope...
03/11/2025

Find out the market price of your property

For a successful sale
Reliable, Fast, Efficient
Nathalie TILLAY
Presented by
Nathalie