Loading...
Exclusive
VENISSIEUX 69200

Appartement à vendre 3 pièces VENISSIEUX (69)

  • bathrooms
    1
  • area
    78 m2
  • bedrooms
    3

Presentation of the property : Apartment 4 rooms for sale in VENISSIEUX

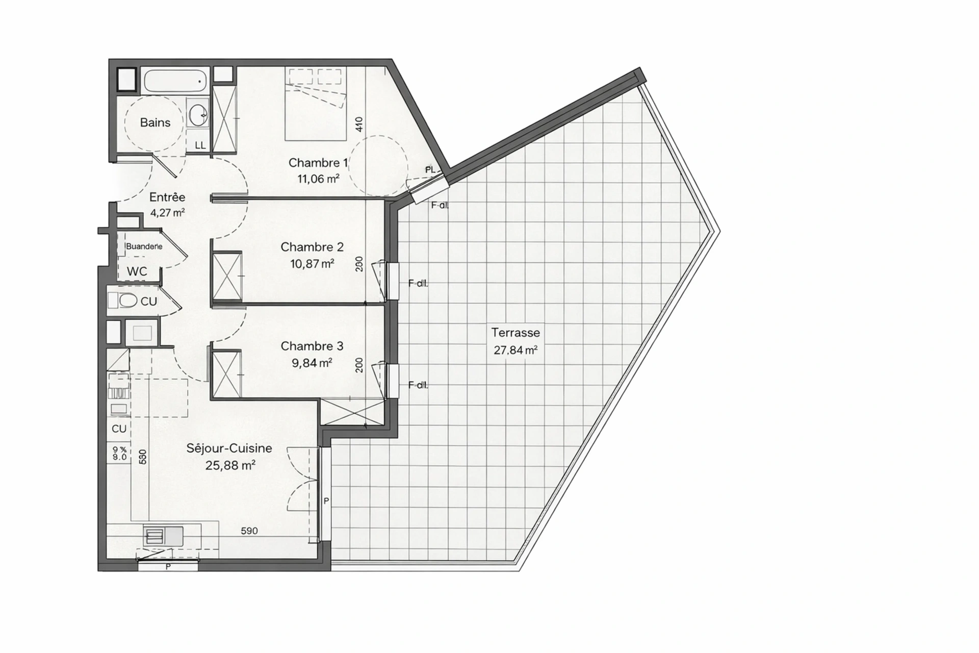
Dans le quartier de Charréard à Vénissieux, découvrez cet appartement de 77 m², situé au premier étage d'une résidence moderne et sécurisé construite en 2019.



Idéal pour une famille ce T4 dispose de deux chambres et de la possibilité d'en créer une troisième facilement ainsi que d'un séjour, avec cuisine ouverte intégralement équipée.



Le gros atout de ce logement est sans conteste l'espace extérieur avec sa vaste terrasse de 60 m² qui saura satisfaire toutes vos envies : espace de jeux pour les enfants, lieu pour recevoir les amis ou la famille ou tout simplement le plaisir de déjeuner et/ou de se prélasser au soleil.



Sachez également que pour compléter votre confort un garage est compris avec l'appartement.



Vous disposerez de tous les services de proximité à moins de 15 min, des établissements scolaires se trouvent à moins de 300 mètres et des parcs verdoyants à moins de 600 mètres. À proximité immédiate, vous trouverez également une pharmacie, un médecin généraliste, un infirmier, un ostéopathe et une supérette.



Et si vous avez besoins de plus, les transports en commun sont au pied de l'immeuble et vous permettent de rejoindre Lyon en 15 min.



La proximité des transports, la localisation de cet appartement et son agencement en fond également un bon investissement locatif car il propose toutes les caractéristiques propices à une colocation. Le rendement brut serait d'au moins 7%. Nombre de lots de la copropriété : 148, Montant moyen annuel de la quote-part de charges (budget prévisionnel)(eau chaude, eau froide, chauffage, entretient partie commune et espaces verts, ascenseur) : 2400€ soit 200€ par mois. Les honoraires sont à la charge du vendeur.

Le Diagnostic de Performance Énergétique(DPE) a été réalisé selon une méthode valable mais non fiable et non-opposable.

Les informations sur les risques auxquels ce bien est exposé sont disponibles sur le site Géorisques : www. georisques. gouv. fr.



Réseau Immobilier CAPIFRANCE - Votre agent commercial (RSAC N°847 929 981 - Greffe de LYON 3EME ARRONDISSEMENT) Nadia BENABED Entrepreneur Individuel 06 82 70 89 76 - Réf.940674
Additional information :
Total price including fees 235 000 €
Fees payable by the seller

To view the fee schedule : click here
Location of the property : Apartment 78 m2 for sale in VENISSIEUX
69200 VENISSIEUX

Features of this property :

340 936 462 237
3
4
78
77,64
1
4
1
2019
East
Electric
yes
yes
yes
235 000 €
1 291 €
235000
71
7
Estimated annual energy costs of the property
Between 485 € and 485 € by year
Estimated amount of annual energy expenditure for standard use : in the form of a range with indication of the range

Average energy prices indexed as of January 1, 2021 (subscriptions included)

Capifrance advisor in charge of this property

Loading...
The data collected from this form is necessary to enable us to respond to your request. It is collected and processed electronically by the data controller and may be passed on to our internal departments and to our partners involved in processing your request. You have the right to access, rectify and object to your data, which you can exercise by contacting us at dpo@digitregroup.com. In accordance with article L 223-1 of the French Consumer Code, users are informed that they have the option of registering on www.bloctel.gouv.fr to oppose all telephone canvassing, with the exception of established customer relationships.
FAQ
The Capifrance team answers your frequently asked questions:

To obtain a mortgage, it is necessary to compile a loan application file with a bank or a credit institution. The conditions for granting a loan generally include a personal contribution, job stability, a reasonable debt-to-income ratio, and a good repayment capacity. It is advisable to compare offers from different institutions to get the best terms.

In addition to the purchase price of the property, several additional costs should be anticipated, such as notary fees (approximately 7 to 8% of the sale price for an older property), agent fees, loan application fees, insurance, as well as potential renovation or furnishing costs.

The difference between a sales agreement and a sales promise lies mainly in the commitment of the parties and the consequences in case of non-compliance with the terms of the contract.
Sales agreement: Strong mutual commitment between both parties. If one party withdraws, the other can demand the forced execution of the property sale.
Sales promise: Unilateral commitment from the seller. The buyer has the option to purchase or not, with a reservation fee in case of non-purchase.

. Contact a Real Estate Advisor
Express your interest in the property for sale.

. Propose a Price and Purchase Conditions
Indicate the offered price and conditions (timeline, contingencies, etc.).

. Wait for the Seller's Response
The seller can accept, reject, or propose a counteroffer.

. Formalize the Sale
If the offer is accepted, sign a sales agreement and verify the legal documents.
Finalize your financing if necessary.
Sign the deed of sale at the notary's office to officially become the owner.

These steps will help you secure and successfully complete your real estate purchase.

Do you need advice for your real estate project? Contact a Capifrance advisor

Find out the market price of your property

For a successful sale
Reliable, Fast, Efficient
Nadia BENABED
Presented by
Nadia