Loading...
1/8
Exclusive
Exclusive
AULNAY SOUS BOIS 93600

Grand appartement de 4 pièces à AULNAY SOUS BOIS (secteur Nord)

  • bathrooms
    1
  • area
    81 m2
  • bedrooms
    3

Presentation of the property : Apartment 4 rooms for sale in AULNAY SOUS BOIS

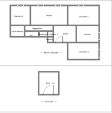
Dans le quartier de la Rose des Vents, à Aulnay sous bois, je vous propose un grand appartement de 80m2, bien agencé et lumineux, au rez-de-chaussée.

Il est composé d'une grande entrée, d'un grand salon avec 2 grandes fenêtres, 3 chambres lumineuses dont une donnant sur un balcon, une cuisine aménagée, une salle de bain, des toilettes séparées, et de nombreux rangements.

Ce bien possède également une cave.

L'immeuble est sécurisé avec un digicode et un interphone. Des places de parking sont accessibles aux abords de l'immeuble.

Tout proche, à quelques minutes à pieds, vous trouverez des groupes scolaires, une mairie annexe, un gymnase, des commerces de proximité, des arrêts de bus.

A quelques minutes en voiture, Centre commercial Sevran Beaudottes, la gare RER B et l'hôpital régional Robert Ballanger.

Pour se promener ou faire du sport, le Parc Du Sausset est à quelques minutes en voiture.

Nombre de lots de la copropriété : 898, Montant moyen annuel de la quote-part de charges (budget prévisionnel) : 4588€ soit 382€ par mois. Les honoraires sont à la charge du vendeur.

Les informations sur les risques auxquels ce bien est exposé sont disponibles sur le site Géorisques : www. georisques. gouv. fr.



Réseau Immobilier CAPIFRANCE - Votre agent commercial (RSAC N°910 084 649 - Greffe de BOBIGNY) Philippe ROYER Entrepreneur Individuel 06 10 98 97 81 - Réf.883890
Additional information :
Total price including fees 204 000 €
Fees payable by the seller

To view the fee schedule : click here
Location of the property : Apartment 81 m2 for sale in AULNAY SOUS BOIS
93600 AULNAY SOUS BOIS

Features of this property :

340 931 817 486
3
4
81
80,59
1
4
Gas, Underfloor
yes
204 000 €
1 200 €
204000
DPE_ passoire énergétique logement extrêmement performant logement extrêmement peu performant consommation (énergie primaire) 187 kWh/m²/an émissions* 31 kgCO2/m²/an
DPE_ * Dont émissions de gaz à effet de serre peu d'émissions de CO2 émissions de CO2 très importantes 31 kgCO2/m²/an
Estimated annual energy costs of the property
Between 1170 € and 1640 € by year
Estimated amount of annual energy expenditure for standard use : in the form of a range with indication of the range

Average energy prices indexed on 2021, 2022, 2023 (subscriptions included)

Capifrance advisor in charge of this property

Loading...
The data collected from this form is necessary to enable us to respond to your request. It is collected and processed electronically by the data controller and may be passed on to our internal departments and to our partners involved in processing your request. You have the right to access, rectify and object to your data, which you can exercise by contacting us at dpo@digitregroup.com. In accordance with article L 223-1 of the French Consumer Code, users are informed that they have the option of registering on www.bloctel.gouv.fr to oppose all telephone canvassing, with the exception of established customer relationships.
FAQ
The Capifrance team answers your frequently asked questions:

To obtain a mortgage, it is necessary to compile a loan application file with a bank or a credit institution. The conditions for granting a loan generally include a personal contribution, job stability, a reasonable debt-to-income ratio, and a good repayment capacity. It is advisable to compare offers from different institutions to get the best terms.

In addition to the purchase price of the property, several additional costs should be anticipated, such as notary fees (approximately 7 to 8% of the sale price for an older property), agent fees, loan application fees, insurance, as well as potential renovation or furnishing costs.

The difference between a sales agreement and a sales promise lies mainly in the commitment of the parties and the consequences in case of non-compliance with the terms of the contract.
Sales agreement: Strong mutual commitment between both parties. If one party withdraws, the other can demand the forced execution of the property sale.
Sales promise: Unilateral commitment from the seller. The buyer has the option to purchase or not, with a reservation fee in case of non-purchase.

. Contact a Real Estate Advisor
Express your interest in the property for sale.

. Propose a Price and Purchase Conditions
Indicate the offered price and conditions (timeline, contingencies, etc.).

. Wait for the Seller's Response
The seller can accept, reject, or propose a counteroffer.

. Formalize the Sale
If the offer is accepted, sign a sales agreement and verify the legal documents.
Finalize your financing if necessary.
Sign the deed of sale at the notary's office to officially become the owner.

These steps will help you secure and successfully complete your real estate purchase.

Do you need advice for your real estate project? Contact a Capifrance advisor

Find out the market price of your property

For a successful sale
Reliable, Fast, Efficient
Philippe ROYER
Presented by
Philippe