Loading...
Exclusive
GREZIEU LA VARENNE 69290

Maison et appartement à vendre, proche du centre de GREZIEU-LA-VARENNE.

  • bathrooms
    3
  • area
    160 m2
  • bedrooms
    4
  • land
    1068 m2

Presentation of the property : House 7 rooms for sale in GREZIEU LA VARENNE

Je vous présente dans cet ancien corps de ferme, une maison et un appartement, sur une parcelle de plus de 1000m2. Situés à deux pas du centre du village de Grézieu-la-Varenne, au calme absolu et sans vis-à-vis.



Ce bien rare, à rénover offre un énorme potentiel pour les amoureux de l'authenticité ou les investisseurs à la recherche d'un bien de caractère à réhabiliter.

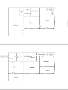
Agencée sur 3 niveaux, vous disposez au rez-de-chaussée d'une grande cuisine ainsi qu'un séjour donnant sur une terrasse couverte par une véranda. Un espace supplémentaire d'environ 50m2 peut être aménagé pour l'appartement ou la maison.

Au 1er étage : 3 chambres et une salle d'eau/wc.

Au 2ème étage : une chambre supplémentaire et combles aménagés



Concernant l'appartement d'environ 35m2, celui-ci possède une entrée indépendante avec une cuisine, une salle d'eau/wc, un séjour et un balcon avec véranda.



Côté jardin : un grand garage 3 places, fermé.



Vous avez des questions ? N'hésitez pas à me contacter. Les honoraires sont à la charge du vendeur.

Les informations sur les risques auxquels ce bien est exposé sont disponibles sur le site Géorisques : www. georisques. gouv. fr.



Réseau Immobilier CAPIFRANCE - Votre agent commercial (RSAC N°897 979 035 - Greffe de LYON) Anne-Sophie BERNIER Entrepreneur Individuel 06 71 40 26 61 - Réf.927653
Additional information :
Total price including fees 455 000 €
Fees payable by the seller

To view the fee schedule : click here
Location of the property : House 160 m2 for sale in GREZIEU LA VARENNE
69290 GREZIEU LA VARENNE

Features of this property :

340 931 883 861
4
7
160
1 068
3
1850
Gas
yes
yes
yes
yes
455 000 €
1 432 €
455000
DPE_ passoire énergétique logement extrêmement performant logement extrêmement peu performant consommation (énergie primaire) 242 kWh/m²/an émissions* 43 kgCO2/m²/an
DPE_ * Dont émissions de gaz à effet de serre peu d'émissions de CO2 émissions de CO2 très importantes 43 kgCO2/m²/an
Estimated annual energy costs of the property
Between 2980 € and 4070 € by year
Estimated amount of annual energy expenditure for standard use : in the form of a range with indication of the range

Average energy prices indexed as of January 1, 2021 (subscriptions included)

Capifrance advisor in charge of this property

Loading...
The data collected from this form is necessary to enable us to respond to your request. It is collected and processed electronically by the data controller and may be passed on to our internal departments and to our partners involved in processing your request. You have the right to access, rectify and object to your data, which you can exercise by contacting us at dpo@digitregroup.com. In accordance with article L 223-1 of the French Consumer Code, users are informed that they have the option of registering on www.bloctel.gouv.fr to oppose all telephone canvassing, with the exception of established customer relationships.
FAQ
The Capifrance team answers your frequently asked questions:

To obtain a mortgage, it is necessary to compile a loan application file with a bank or a credit institution. The conditions for granting a loan generally include a personal contribution, job stability, a reasonable debt-to-income ratio, and a good repayment capacity. It is advisable to compare offers from different institutions to get the best terms.

In addition to the purchase price of the property, several additional costs should be anticipated, such as notary fees (approximately 7 to 8% of the sale price for an older property), agent fees, loan application fees, insurance, as well as potential renovation or furnishing costs.

The difference between a sales agreement and a sales promise lies mainly in the commitment of the parties and the consequences in case of non-compliance with the terms of the contract.
Sales agreement: Strong mutual commitment between both parties. If one party withdraws, the other can demand the forced execution of the property sale.
Sales promise: Unilateral commitment from the seller. The buyer has the option to purchase or not, with a reservation fee in case of non-purchase.

. Contact a Real Estate Advisor
Express your interest in the property for sale.

. Propose a Price and Purchase Conditions
Indicate the offered price and conditions (timeline, contingencies, etc.).

. Wait for the Seller's Response
The seller can accept, reject, or propose a counteroffer.

. Formalize the Sale
If the offer is accepted, sign a sales agreement and verify the legal documents.
Finalize your financing if necessary.
Sign the deed of sale at the notary's office to officially become the owner.

These steps will help you secure and successfully complete your real estate purchase.

Do you need advice for your real estate project? Contact a Capifrance advisor

Find out the market price of your property

For a successful sale
Reliable, Fast, Efficient
Anne-Sophie BERNIER
Presented by
Anne-Sophie