Loading...
ALES 30100

Dpt Gard (30), ALES à vendre idéal investisseur, local professionnel 434m² environ;

  • area
    434 m2

Presentation of the property : Shop 10 rooms for sale in ALES

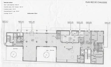
Dpt Gard (30), ALES à vendre idéal investisseur, local professionnel 434m² environ avec deux patios au RDC et à plain pied dans une très belle résidence à l'angle de la rue Jean julien Trelis et du boulevard Gambetta, proche clinique Bonnefon.



les locaux spacieux et lumineux sont définis comme suit:



espace principal (Salon + salon d'agrément) de 266m².

cuisine et annexes de 80,7m²,

2 sanitaires pour un total de 18,4m²,

ensemble de bureau + Loge: 32,9m²

lingerie de 35,2m²..



acces PMR aux normes, climatisations réversible, évacuation hotte cuisines présentes et normes incendie OK.

locaux divisibles selon projet.



Prix : 295000 euros frais d'agence et taxes inclus. Nombre de lots de la copropriété : 76, Montant moyen annuel de la quote-part de charges (budget prévisionnel) : 2449€ soit 204€ par mois. Les honoraires sont à la charge du vendeur.

Les informations sur les risques auxquels ce bien est exposé sont disponibles sur le site Géorisques : www. georisques. gouv. fr.



Réseau Immobilier CAPIFRANCE - Votre agent commercial (RSAC N°848 737 466 - Greffe de NIMES) Rémy TINNIRELLO Entrepreneur Individuel 06 42 01 59 28 - Réf.891085
Additional information :
Total price including fees 295 000 €
Fees payable by the seller

To view the fee schedule : click here
Location of the property : Shop 434 m2 for sale in ALES
30100 ALES

Features of this property :

340 931 991 378
10
434
433,64
295 000 €
295000

Capifrance advisor in charge of this property

Loading...
The data collected from this form is necessary to enable us to respond to your request. It is collected and processed electronically by the data controller and may be passed on to our internal departments and to our partners involved in processing your request. You have the right to access, rectify and object to your data, which you can exercise by contacting us at dpo@digitregroup.com. In accordance with article L 223-1 of the French Consumer Code, users are informed that they have the option of registering on www.bloctel.gouv.fr to oppose all telephone canvassing, with the exception of established customer relationships.
FAQ
The Capifrance team answers your frequently asked questions:

Investing in commercial properties can offer several attractive advantages for investors. Here are some reasons why this type of investment can be appealing:

High returns
Tenant stability: Businesses tend to sign long-term leases (often between 3 and 9 years). This provides stable rental income over the long term and reduces the risk of vacancy.
Property appreciation: Commercial properties can increase in value over time, especially if they are located in developing areas or thriving business districts.
Diversification opportunities: Investing in commercial properties allows for the diversification of an investment portfolio. This helps reduce risks by spreading investments across different types of real estate assets (offices, retail spaces, warehouses, etc.).
Less daily management: Compared to managing residential properties, commercial properties require less daily management. Tenant businesses are generally responsible for routine maintenance.

There is no tacit renewal. The tenant must request the renewal of the lease 6 months before the lease's expiration. This request cannot be refused.

In the case of tacit extension, the conditions of the initial lease continue to apply, but the parties can terminate the lease at any time, subject to a notice period. The terms of the lease (rent, charges, etc.) continue to apply. If the lease duration exceeds 12 years, the landlord can uncap the rent (i.e., the rent will be set at the market rental value commonly practiced in the vicinity).

Valuing a business requires a comprehensive approach, taking into account the financial, commercial, material, and immaterial aspects of the company. Consulting a specialist in business valuation can also help to obtain an accurate and professional estimate.

Do you need advice for your real estate project? Contact a Capifrance advisor

Find out the market price of your property

For a successful sale
Reliable, Fast, Efficient
Rémy TINNIRELLO
Presented by
Rémy