Loading...
1/10
Sous compromis
Sous compromis
MEAUX 77100

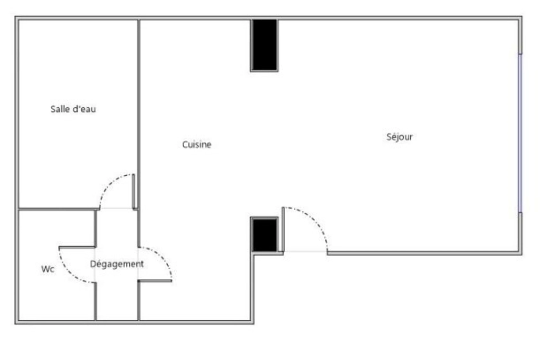
CAPIFRANCE- Christophe Michaudelle vous propose : à MEAUX secteur recherché, toutes commodités à pied, studio 31 m² - espace cuisine aménagé

  • salles de bain
    1
  • superficie
    31 m2
  • terrain
    31 m2

Présentation du bien : Appartement 1 pièce à vendre à MEAUX

CAPIFRANCE- Christophe Michaudelle vous propose : à MEAUX secteur recherché, toutes commodités à pied, studio 31 m² - espace cuisine aménagé

Appartement en RDC, au calme, à proximité immédiate des commodités, bien entretenu, grand séjour lumineux- bien exposé, fonctionnel avec ses rangements et espaces optimisés.

Informations complémentaires :
DPE en D
Vendu libre de toute occupation
Commodités à pied : centre ville, commerces, transports dont la gare pour Paris gare de l'Est et accès Val d'Europe / Gare TGV, activités sportives,...
Chauffage électrique
Fibre
Rangements

Vous êtes intéressés, vous avez besoin d'informations complémentaires ?
Contactez-moi, je serai ravi de vous faire découvrir ce bel appartement.

Autres informations :
Gare de Meaux en transport avec accès Paris Gare de l'Est en 28 min.
A 17 kms du Val d'Europe
A 17 kms de la Gare TGV/RERA
A 27 kms de l'Aéroport de Roissy Charles de Gaulles
Nombre de lots de la copropriété : 46, Montant moyen annuel de la quote-part de charges (budget prévisionnel)(avec l'eau) : 1100€ soit 91€ par mois. Les honoraires sont à la charge du vendeur.
Les informations sur les risques auxquels ce bien est exposé sont disponibles sur le site Géorisques : www. georisques. gouv. fr.

Réseau Immobilier CAPIFRANCE - Votre agent commercial (RSAC N°807 514 039 - Greffe de MEAUX) Christophe MICHAUDELLE Entrepreneur Individuel à Responsabilité Limitée 06 24 17 46 57 - Réf.926291
Informations complémentaires :
Pour accéder au barème des honoraires : cliquez ici
Localisation du bien : Appartement 31 m2 à vendre à MEAUX
77100 MEAUX

Caractéristiques du bien :

340 932 506 785
1
31
31
31
1
3
1950
Ouest
Electrique
DPE_ passoire énergétique logement extrêmement performant logement extrêmement peu performant consommation (énergie primaire) 247 kWh/m²/an émissions* 7 kgCO2/m²/an
DPE_ * Dont émissions de gaz à effet de serre peu d'émissions de CO2 émissions de CO2 très importantes 7 kgCO2/m²/an
Estimation des coûts annuels d'énergie du logement
Entre 650 € et 920 € par an
Montant estimé des dépenses annuelles d’énergie pour un usage standard : sous forme de fourchette avec indication de la fourchette

Prix moyens des énergies indexés sur les années 2021, 2022, 2023 (abonnements compris)

Conseiller Capifrance en charge de ce bien

Loading...
Les données collectées à partir de ce formulaire sont nécessaires pour nous permettre de répondre à votre demande. Elles sont collectées et traitées informatiquement par le responsable de traitement et peuvent être transmises à nos services internes ainsi qu'à nos partenaires intervenant dans l'instruction de votre demande. Vous disposez sur vos données de droits d'accès, de rectification, d'opposition, que vous pouvez exercer en nous contactant à dpo@digitregroup.com. Pour plus de détails, consulter notre page politique générale de confidentialité. Conformément à l'article L 223-1 du code de la consommation, l'utilisateur est informé qu'il a la possibilité de s'inscrire sur www.bloctel.gouv.fr pour s'opposer à toute démarcharge par téléphone, à l'exception des relations clients déjà établies.
Foire aux questions
L’équipe Capifrance répond à vos questions :

Pour obtenir un prêt immobilier, il est nécessaire de constituer un dossier de demande de prêt auprès d'une banque ou d'un organisme de crédit. Les conditions d'octroi d'un prêt incluent généralement un apport personnel, une stabilité professionnelle, un taux d'endettement raisonnable et une bonne capacité de remboursement. Il est conseillé de comparer les offres de différents établissements pour obtenir les meilleures conditions.

En plus du prix d'achat du bien, il faut prévoir plusieurs frais supplémentaires tels que les frais de notaire (environ 7 à 8 % du prix de vente pour un bien ancien), les honoraires, les frais de dossier pour le prêt immobilier, les assurances, ainsi que les éventuels frais de rénovation ou d'aménagement.

La différence entre un compromis de vente et une promesse de vente réside principalement dans l'engagement des parties et les conséquences en cas de non-respect des termes du contrat.

  • Compromis de vente : Engagement mutuel fort entre les deux parties. Si l'une se rétracte, l'autre peut demander l'exécution forcée de la vente du bien.
  • Promesse de vente : Engagement unilatéral du vendeur. L'acheteur a le choix d'acheter ou non, avec une indemnité d'immobilisation en cas de non-achat.

. Contactez un Conseiller Immobilier
Exprimez votre intérêt pour le bien en vente.

. Proposez un Prix et les Conditions de l'Achat
Indiquez le prix offert et les conditions (délai, conditions suspensives, etc.).

. Attendez la Réponse du Vendeur
Le vendeur peut accepter, refuser ou proposer une contre-offre.

.Formalisez la Vente
Si l'offre est acceptée, signez un compromis de vente et vérifiez les documents légaux.
Finalisez votre financement si nécessaire.
Signez l'acte de vente chez le notaire pour devenir officiellement propriétaire.

Ces étapes vous aideront à sécuriser et réussir votre achat immobilier.

Vous avez besoin de conseils pour votre projet immobilier ? Contacter un conseiller Capifrance

Découvrez le prix de votre bien par rapport au marché

Pour une vente réussie
Fiable Rapide Efficace
Christophe MICHAUDELLE
Présenté par
Christophe