Loading...
Pour découvrir contactez nous
Je veux être contacté
1/1
TARBES 65000

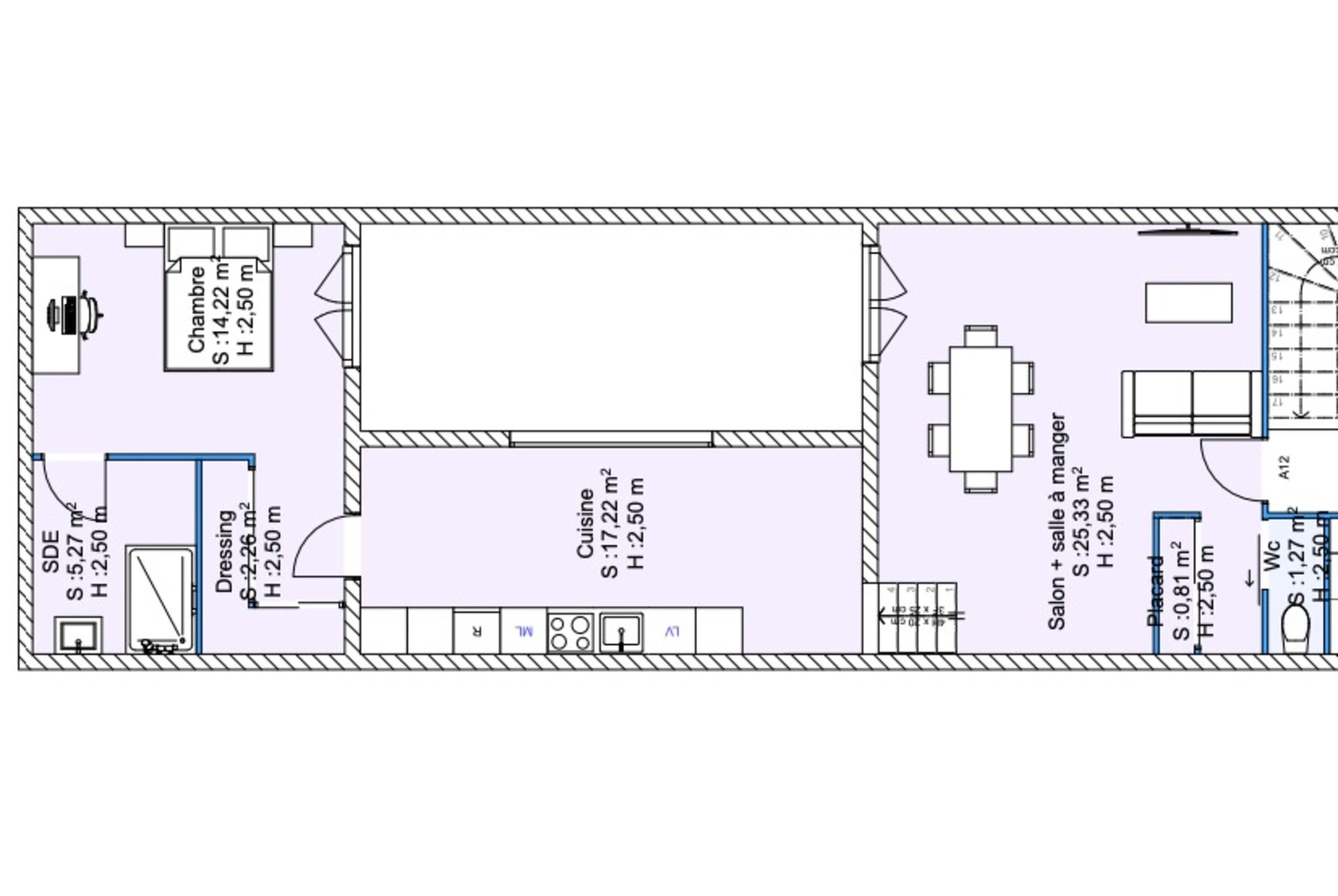
Plateau de 66 m2 en R+1

  • salles de bain
    1
  • superficie
    67 m2
  • chambres
    1

Présentation du bien : Appartement 2 pièces à vendre à TARBES

Plateau en R+1 de 66 m2.
Idéalement situé en centre ville, dans une petite copropriété bénévole de 5 lots. L'immeuble est revisité à neuf, toiture , couverture, double vitrage, façades et communs terminés, cave pour chaque lots, boites à lettres et local poubelles réalisés. La séparation des lots est faite de façon a avoir une cloison SAD avec porte palière, un compteur d'eau et le compteur électrique dans chaque lots.
Les plans et division intérieurs sont fournis, les évacuations salle d'eau, cuisine et toilette réalisés.

Reste à réaliser pour les futurs acquéreurs, l'aménagement intérieur en totalité.
Belle opportunité.
Peu de charge de copropriété. Nombre de lots de la copropriété : 5, Montant moyen annuel de la quote-part de charges (budget prévisionnel) : 140€ soit 11€ par mois, avec Syndic Bénévole. Les honoraires sont à la charge du vendeur.
Les informations sur les risques auxquels ce bien est exposé sont disponibles sur le site Géorisques : www. georisques. gouv. fr.

Réseau Immobilier CAPIFRANCE - Votre agent commercial (RSAC N°412 033 425 - Greffe de TARBES) Georges DA CUNHA Entrepreneur Individuel 06 71 67 94 18 - Réf.923984
Informations complémentaires :
Prix global avec honoraires 84 000 €
Honoraires à la charge du vendeur

Pour accéder au barème des honoraires : cliquez ici
Localisation du bien : Appartement 67 m2 à vendre à TARBES
65000 TARBES

Caractéristiques du bien :

340 938 881 940
1
2
67
1
2
1
Est
84 000 €
84000

Conseiller Capifrance en charge de ce bien

Loading...
Les données collectées à partir de ce formulaire sont nécessaires pour nous permettre de répondre à votre demande. Elles sont collectées et traitées informatiquement par le responsable de traitement et peuvent être transmises à nos services internes ainsi qu'à nos partenaires intervenant dans l'instruction de votre demande. Vous disposez sur vos données de droits d'accès, de rectification, d'opposition, que vous pouvez exercer en nous contactant à dpo@digitregroup.com. Pour plus de détails, consulter notre page politique générale de confidentialité. Conformément à l'article L 223-1 du code de la consommation, l'utilisateur est informé qu'il a la possibilité de s'inscrire sur www.bloctel.gouv.fr pour s'opposer à toute démarcharge par téléphone, à l'exception des relations clients déjà établies.
Foire aux questions
L’équipe Capifrance répond à vos questions :

Pour obtenir un prêt immobilier, il est nécessaire de constituer un dossier de demande de prêt auprès d'une banque ou d'un organisme de crédit. Les conditions d'octroi d'un prêt incluent généralement un apport personnel, une stabilité professionnelle, un taux d'endettement raisonnable et une bonne capacité de remboursement. Il est conseillé de comparer les offres de différents établissements pour obtenir les meilleures conditions.

En plus du prix d'achat du bien, il faut prévoir plusieurs frais supplémentaires tels que les frais de notaire (environ 7 à 8 % du prix de vente pour un bien ancien), les honoraires, les frais de dossier pour le prêt immobilier, les assurances, ainsi que les éventuels frais de rénovation ou d'aménagement.

La différence entre un compromis de vente et une promesse de vente réside principalement dans l'engagement des parties et les conséquences en cas de non-respect des termes du contrat.

  • Compromis de vente : Engagement mutuel fort entre les deux parties. Si l'une se rétracte, l'autre peut demander l'exécution forcée de la vente du bien.
  • Promesse de vente : Engagement unilatéral du vendeur. L'acheteur a le choix d'acheter ou non, avec une indemnité d'immobilisation en cas de non-achat.

. Contactez un Conseiller Immobilier
Exprimez votre intérêt pour le bien en vente.

. Proposez un Prix et les Conditions de l'Achat
Indiquez le prix offert et les conditions (délai, conditions suspensives, etc.).

. Attendez la Réponse du Vendeur
Le vendeur peut accepter, refuser ou proposer une contre-offre.

.Formalisez la Vente
Si l'offre est acceptée, signez un compromis de vente et vérifiez les documents légaux.
Finalisez votre financement si nécessaire.
Signez l'acte de vente chez le notaire pour devenir officiellement propriétaire.

Ces étapes vous aideront à sécuriser et réussir votre achat immobilier.

Vous avez besoin de conseils pour votre projet immobilier ? Contacter un conseiller Capifrance

Découvrez le prix de votre bien par rapport au marché

Pour une vente réussie
Fiable Rapide Efficace
Georges DA CUNHA
Présenté par
Georges