Loading...
VAUJOURS 93410

VAUJOURS Maison 4 pièces - 92 m2 avec sous-sol total

  • salles de bain
    1
  • superficie
    91 m2
  • chambres
    2
  • terrain
    598 m2

Présentation du bien : Maison 4 pièces à vendre à VAUJOURS

Vaujours secteur Fénelon en exclusivité, votre conseillère en Immobilier Sylvie BERTON Capifrance vous propose à la vente cette maison de 1976 d'une superficie de 92 m2 avec un très beau terrain d'environ 600 m2. Maison non mitoyenne vous pouvez faire le tour de la maison avec son sous-total d'environ 93 m2.

Vous arriverez sur une belle entrée avec placard, une cuisine indépendante et dinatoire aménagée et équipée d'environ 12 m2 avec son cellier. Vous pourrez aussi profitez de votre séjour salon avec cheminée d'une très grande superficie d'environ 41 m2.

Un couloir vous mène vers deux chambres de chacune 9 m2 dont une avec placard, une salle d'eau et un wc indépendant.

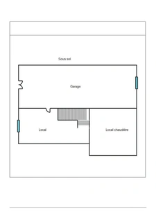
Le très grand sous-sol est composé d'une buanderie avec chaudière Frisquet, d'une grande pièce de 18 m2 pour du rangement et un très grand garage d'environ 38 m2 où vous pourrez garer deux voitures l'une derrière l'autre.

Fenêtres double vitrage PVC partout, volet bois, combles non aménageable, possibilité de garer trois voitures ou un utilitaire devant le garage.

Secteur calme et pavillonnaire. Pour tous renseignements le 06.31.76.58.99
Les honoraires sont à la charge du vendeur.
Les informations sur les risques auxquels ce bien est exposé sont disponibles sur le site Géorisques : www. georisques. gouv. fr.

Réseau Immobilier CAPIFRANCE - Votre agent commercial (RSAC N°442 471 967 - Greffe de BOBIGNY) Sylvie BERTON Entrepreneur Individuel 06 31 76 58 99 - Réf.928580
Informations complémentaires :
Prix global avec honoraires 347 000 €
Honoraires à la charge du vendeur

Pour accéder au barème des honoraires : cliquez ici
Localisation du bien : Maison 91 m2 à vendre à VAUJOURS
93410 VAUJOURS

Caractéristiques du bien :

340 934 599 327
2
4
91
598
1
1976
Gaz
oui
oui
347 000 €
1 227 €
347000
DPE_ passoire énergétique logement extrêmement performant logement extrêmement peu performant consommation (énergie primaire) 249 kWh/m²/an émissions* 36 kgCO2/m²/an
DPE_ * Dont émissions de gaz à effet de serre peu d'émissions de CO2 émissions de CO2 très importantes 36 kgCO2/m²/an
Estimation des coûts annuels d'énergie du logement
Entre 1774 € et 2400 € par an
Montant estimé des dépenses annuelles d’énergie pour un usage standard : sous forme de fourchette avec indication de la fourchette

Prix moyens des énergies indexés sur les années 2021, 2022, 2023 (abonnements compris)

Conseiller Capifrance en charge de ce bien

Loading...
Les données collectées à partir de ce formulaire sont nécessaires pour nous permettre de répondre à votre demande. Elles sont collectées et traitées informatiquement par le responsable de traitement et peuvent être transmises à nos services internes ainsi qu'à nos partenaires intervenant dans l'instruction de votre demande. Vous disposez sur vos données de droits d'accès, de rectification, d'opposition, que vous pouvez exercer en nous contactant à dpo@digitregroup.com. Pour plus de détails, consulter notre page politique générale de confidentialité. Conformément à l'article L 223-1 du code de la consommation, l'utilisateur est informé qu'il a la possibilité de s'inscrire sur www.bloctel.gouv.fr pour s'opposer à toute démarcharge par téléphone, à l'exception des relations clients déjà établies.
Foire aux questions
L’équipe Capifrance répond à vos questions :

Pour obtenir un prêt immobilier, il est nécessaire de constituer un dossier de demande de prêt auprès d'une banque ou d'un organisme de crédit. Les conditions d'octroi d'un prêt incluent généralement un apport personnel, une stabilité professionnelle, un taux d'endettement raisonnable et une bonne capacité de remboursement. Il est conseillé de comparer les offres de différents établissements pour obtenir les meilleures conditions.

En plus du prix d'achat du bien, il faut prévoir plusieurs frais supplémentaires tels que les frais de notaire (environ 7 à 8 % du prix de vente pour un bien ancien), les honoraires, les frais de dossier pour le prêt immobilier, les assurances, ainsi que les éventuels frais de rénovation ou d'aménagement.

La différence entre un compromis de vente et une promesse de vente réside principalement dans l'engagement des parties et les conséquences en cas de non-respect des termes du contrat.

  • Compromis de vente : Engagement mutuel fort entre les deux parties. Si l'une se rétracte, l'autre peut demander l'exécution forcée de la vente du bien.
  • Promesse de vente : Engagement unilatéral du vendeur. L'acheteur a le choix d'acheter ou non, avec une indemnité d'immobilisation en cas de non-achat.

. Contactez un Conseiller Immobilier
Exprimez votre intérêt pour le bien en vente.

. Proposez un Prix et les Conditions de l'Achat
Indiquez le prix offert et les conditions (délai, conditions suspensives, etc.).

. Attendez la Réponse du Vendeur
Le vendeur peut accepter, refuser ou proposer une contre-offre.

.Formalisez la Vente
Si l'offre est acceptée, signez un compromis de vente et vérifiez les documents légaux.
Finalisez votre financement si nécessaire.
Signez l'acte de vente chez le notaire pour devenir officiellement propriétaire.

Ces étapes vous aideront à sécuriser et réussir votre achat immobilier.

Vous avez besoin de conseils pour votre projet immobilier ? Contacter un conseiller Capifrance

Découvrez le prix de votre bien par rapport au marché

Pour une vente réussie
Fiable Rapide Efficace
Sylvie BERTON
Présenté par
Sylvie